$549,900
3
beds
4
baths
2
spaces
2,405
sqft
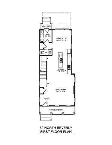
New Construction "Arlington Market II" Featuring Open Floor plans. Smart Home Design and Amenities.100% Energy Star Certified.Open Kitchen w/Eat-in Breakfast Area. Modern Cabinetry, Quartz counter top throughout .Hardwood flooring 1st Floor. 9' Sealing all three floors, Coffered Ceiling 1st floor,Tray ceiling all 3 Bedrooms 3.1 Bathrooms,2 Car Garage. Conveniently located near Downtown Arlington Heights, Near expressways including Rt. 53 & NW Highway 14.Walk to Metra, Mariano's, Day Care. Tier 1 Schools.














Call or email me below.
Website created with My Listing Site by Home ASAP.
Copyright 2025 HomeASAP LLC.