$850,000
4
beds
4
baths
3
spaces
3,500
sqft
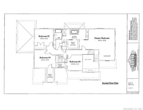
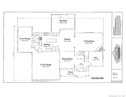
TO BE BUILT in 2021 AT CUL DE SAC STREET! PREMIER NEIGHBORHOOD! New construction! Beautiful custom colonial with first floor masted in a very popular Farmington neighborhood. In plan: Open floor concept, 9 ft. Ceilings, extensive use of crown moldings & granite, beautifully custom designed gourmet kitchen with premium SS appliances. Hardwood floors throughout, awesome master suite. Large deck overlooking private rear yard. Full walkout lower level can also be completed to enhance your living needs. Home professionally designed for maximum enjoyment. There's even space for your wine cellar and In-Law apartment! This house is still available for customization or bring your own plans and we will build. Use your imagination finishing your new luxury home with our help. LOT available for purchase MLS 170364242 . Agents do your due diligence. Photos used from similar house we build at 90 Williamsburg Ln Higganum CT. Plot plan available . ESCALATION CLAUSE FOR SPECIFIED BUILDING MATERIALS
Price: $850,000
Beds: 4
Full Baths: 3
Total Baths: 4
Square Feet: 3,500
Lot Size: 1.83 acre(s)
Car Parking: 3
Cooling: Central Air
Heating: Hot Air
Energy: Extra Insulation,Programmable Thermostat,Ridge Vents,Storm Windows,Thermopane Windows
Year Built: 2021
Property Tax: $2,705
Days on Market: 297
Fireplace: Yes
MLS #: 170364243









































Call or email me below.
Website created with My Listing Site by Home ASAP.
Copyright 2025 HomeASAP LLC.